EC DetailEC Detail
Om ossVåra tjänsterTidigare uppdragMiljöhus
Kontakta oss

Miljöhus

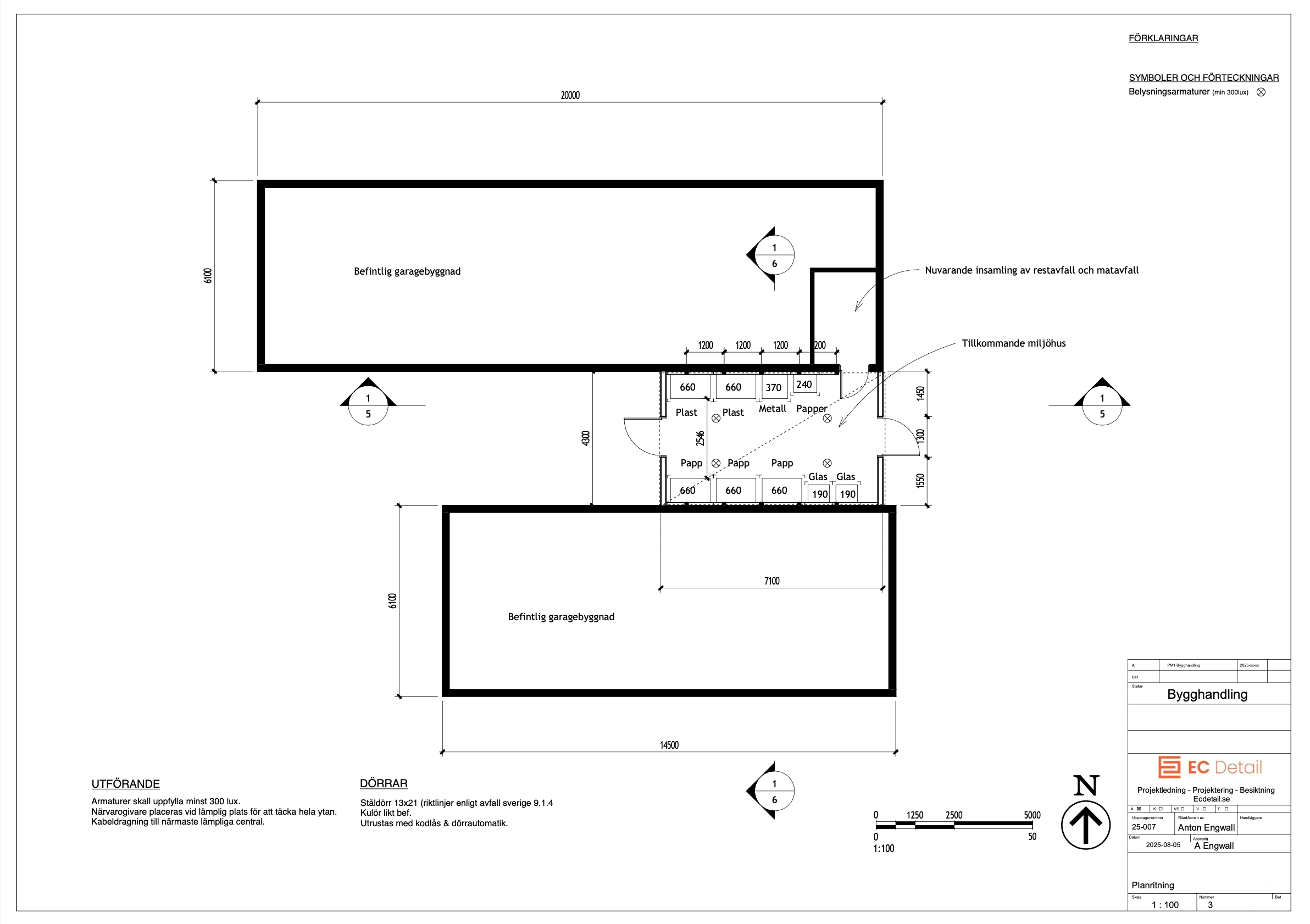
Ritning av miljöhus till kund

Bygghandling miljöhus

Ritningar av tillkommande miljöhus, mellan befintliga garagebyggnader...

Pergola

Ritning av pergola till kund...

Fasadritning

Ritning av fasad till kund...

Miljöstation

Ritning av miljöstation...

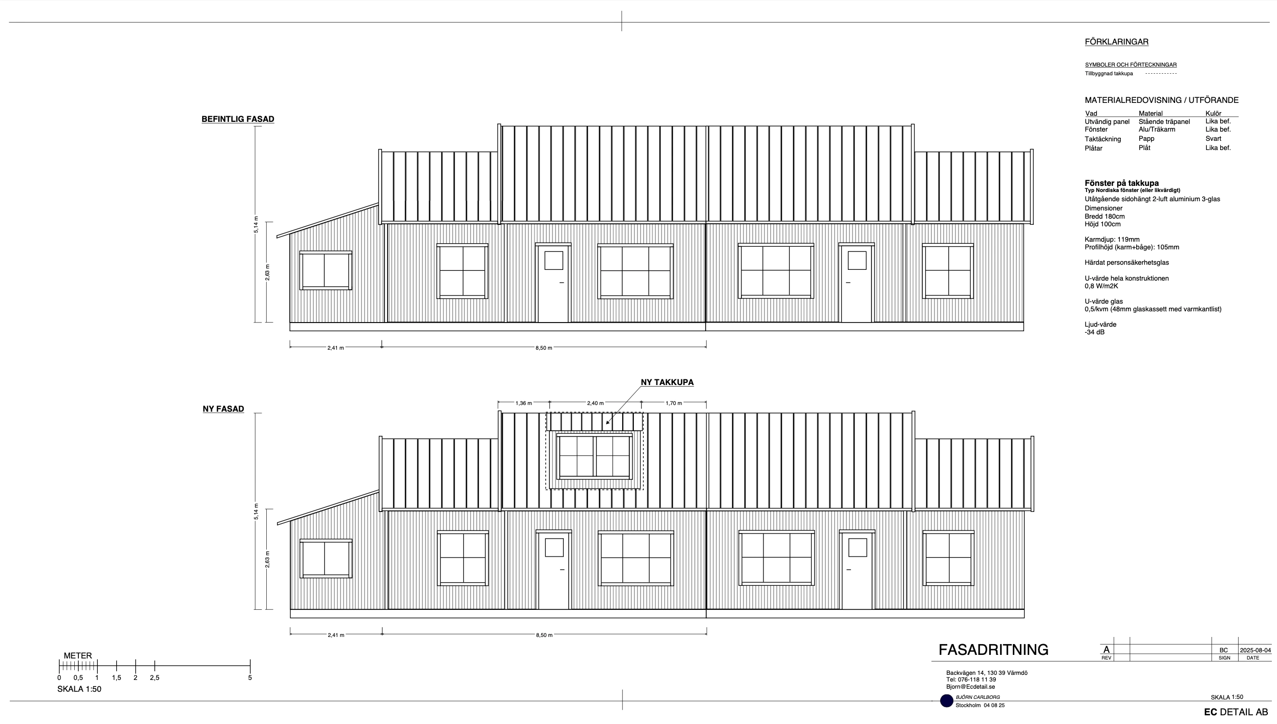
Fasadritning med takkupa och fönster

Fasadritning med ny takkupa och fönster...

Ritning bastu

Ritning av bastu inomhus...

Ritning utomhustrappa

Ritning av trappa vid altan...

Skutvikshagen BRF - Projektledning besiktningsåtgärder

Skutvikshagen BRF - Projektledning besiktningsåtgärder

Ciceron Bygg AB - Projektledning

Ciceron Bygg AB - Projektledning

Serneke Sverige AB Projektledning/TF Avdelningschef

Vi var TF avdelningschef hos Serneke Sverige AB

Översiktsplan

Översiktsplan till kund

Utformning av nya takvinklar vid utbyggnad

Förslag till kund och entreprenör hur nya takvinklar kan se ut med ny utbyggnad samt planritning u...
EC Detail
EC Detail AB är ett modernt företag inom byggsektorn som förvandlar byggprojekt från dröm till verklighet. Med vår specialisering inom projektledning, bygglov, ritningar och besiktningar, samt över 20 års erfarenhet i branschen, har vi en passion för att guida både privatpersoner och företag genom alla steg i byggprocessen.
EC Detail
Om ossVåra tjänsterTidigare uppdragMiljöhus
Kontakt
Backvägen 14
139 30Värmdö
anton@ecdetail.se
070-081 93 42
Sida skapad av